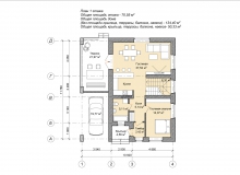
Проект 027-3 (134,40 кв. м)

Площадь: 134,40 м2